Poecke
Transformation of a building into a public program
Location:
Rotterdam, the Netherlands
Client:
Van Poecke
Design:
PEÑA architecture
Architect:
Gabriel Peña
Builder:
Kossmann aannemer, Rotterdam
Photography:
Maarten Laupman
Gross area:
55 m2
Status:
Delivered 2018
The Osteopathy practice VanPoecke is located in the Middelland district in Rotterdam. This neighborhood is characterized by avenues and canals with stately architecture that gives the area a rustic look. At the same time there is a wide variety of shops for food and delicacies, restaurants and small craft businesses.
The VanPoecke practice is part of this diverse range of facilities. It is located on the ground floor of a home.
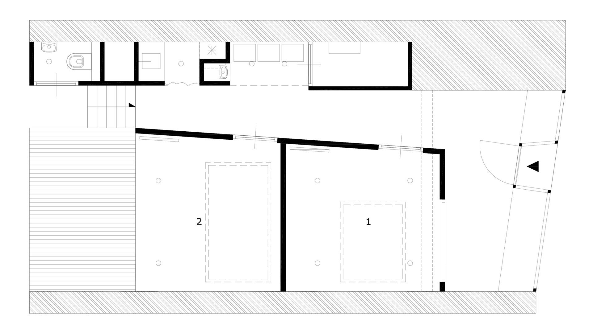
The challenge of the design was to create space for the Osteopathy practice in the limited, rectangular ground floor of the building.
The assignment was to design two treatment rooms, a waiting room, a pantry and a toilet. Due to the rectangular shape of the ground floor and to the effect of the daylight’s angle-of-entry and intensity on the street side, a box-in-box design has been chosen.
The rectangular block of eight meters long and four meters wide and high is modulated according to the daylight and the accessibility. This resulted in the new form. The block has been kept clear of the street wall and has created a new relationship with the street.
The windows that were made in the new block provide daylight in the treatment rooms and give a sense of more spaciousness to the interior.
The VanPoecke practice is part of this diverse range of facilities. It is located on the ground floor of a home.
The challenge of the design was to create space for the Osteopathy practice in the limited, rectangular ground floor of the building.
The assignment was to design two treatment rooms, a waiting room, a pantry and a toilet. Due to the rectangular shape of the ground floor and to the effect of the daylight’s angle-of-entry and intensity on the street side, a box-in-box design has been chosen.
The rectangular block of eight meters long and four meters wide and high is modulated according to the daylight and the accessibility. This resulted in the new form. The block has been kept clear of the street wall and has created a new relationship with the street.
The windows that were made in the new block provide daylight in the treatment rooms and give a sense of more spaciousness to the interior.









